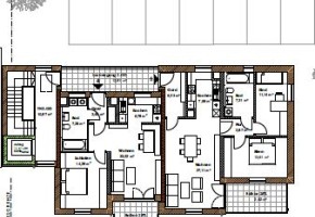
Baumaßnahme Schweidnitzer Straße 3
Wohnungsreservierungen für Neubaumaßnahme Schweidnitzer Straße 3 sind möglich.
Interessenten an unserem Neubauvorhaben haben die Möglichkeit sich für eine Wohnung zu bewerben und eine Reservierung zu hinterlegen.
Der Abbruch der Altgebäude in der Stettiner Straße ist bereits erfolgt. Der Baubeginn erfolgt, sobald die Witterung es im nächsten Jahr 2026 zulässt. Baufertigstellung ist für Anfang 2027 geplant.

